4 pokoje
109.50 m²
14 146,12 zł/m2
parter
JEZ-DS-2

1 549 000 zł

Dom na sprzedaż
Oferta specjalna
Video

Szczegóły oferty

Symbol oferty JEZ-DS-2
Powierzchnia 109,50 m²
Powierzchnia użytkowa [m2] 109,50 m²
Powierzchnia działki [m2] 1 441 m²
Liczba pokoi 4
Rodzaj domu wolnostojący
Standard
Piętro parter
Liczba pięter w budynku 1
Garaż dwustanowiskowy
Okna PCV 3 szyby, ciepły montaż
Zagosp. działki zagospodarowana
Ukształtowanie działki PROSTOKĄT
Kształt działki prostokąt
Pokrycie dachu dachówka ceramiczna
Stan budynku do zamieszkania
Ogrodzenie działki ogrodzona
Rok budowy 2020
Plac zabaw tak
Umeblowanie pełne
Alarm tak
Rolety antywłamaniowe tak

Opis nieruchomości

Jeśli marzysz o domu, w którym po pracy naprawdę można zwolnić tempo, wyjść do ogrodu, usiąść przy basenie i mieć poczucie prywatności – ta nieruchomość spełni Twoje oczekiwania.
To parterowy, nowoczesny dom położony w miejscowości Borów, w spokojnym otoczeniu zabudowy jednorodzinnej. Miejsce stworzone dla osób, które chcą mieszkać blisko Wrocławia, ale bez miejskiego zgiełku.
Wybudowany w 2020 roku, został wykończony pod okiem architekta w stylu minimalistycznym – prostym, spójnym i bardzo funkcjonalnym. Przestrzeń została zaprojektowana tak, aby codzienne życie było wygodne i intuicyjne.

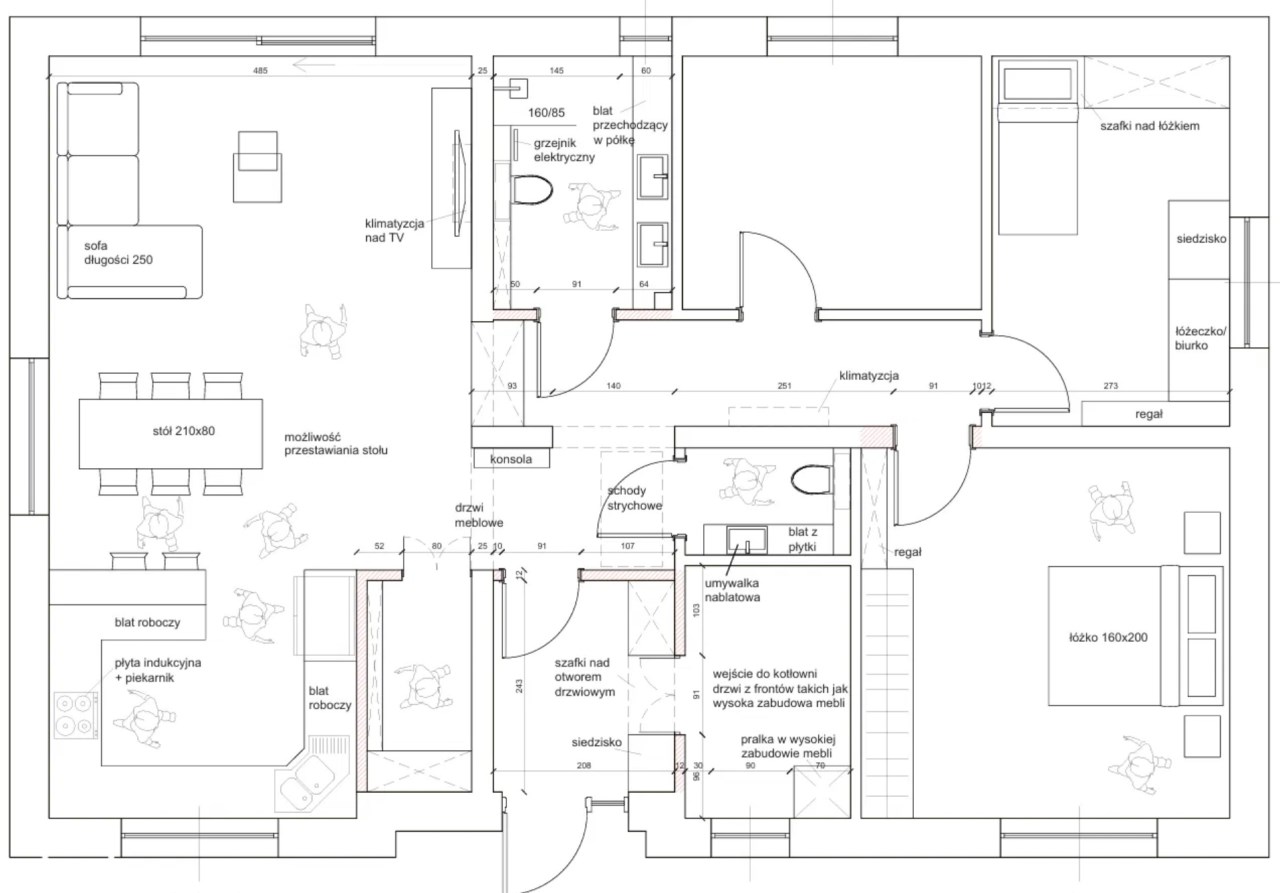
Strefa dzienna to jasny, przestronny salon połączony z kuchnią i jadalnią – miejsce wspólnych posiłków, spotkań z bliskimi i codziennego odpoczynku. 
Kuchnia posiada nowoczesną zabudowę, półwysep z dostawką oraz dużą, osobną spiżarnię, która znacząco podnosi komfort użytkowania.
Część prywatna domu obejmuje trzy sypialnie, zapewniające spokój i intymność. Łazienka została wyposażona w przestronny prysznic typu walk-in, a dodatkowa toaleta oraz pralnia z kotłownią uzupełniają funkcjonalny układ wnętrza.
Dodatkowym atutem jest zaadaptowane poddasze z wyprowadzonymi instalacjami – z możliwością stworzenia nawet dwóch dodatkowych pokoi oraz łazienki w przyszłości.

Prawdziwą perełką tej nieruchomości jest duży, zadbany ogród - otoczony laurowiśniami, katalpami oraz kilkuletnimi drzewami owocowymi, tworzy idealne miejsce do wypoczynku.
Na terenie ogrodu znajduje się basen o wymiarach 9,16 × 4,7 m, wyposażony w automatykę dozowania chemii oraz osobną pompę ciepła do podgrzewania wody – dzięki czemu sezon basenowy trwa tu znacznie dłużej.
Uzupełnieniem zabudowy jest wolnostojący 40m garaż, który doskonale sprawdzi się nie tylko jako miejsce do parkowania, ale również jako przestrzeń do przechowywania czy warsztat.
Z salonu prowadzi bezpośrednie wyjście na duży zadaszony taras, który naturalnie przedłuża strefę dzienną domu. To idealne miejsce na poranną kawę, rodzinne posiłki na świeżym powietrzu czy spokojne wieczory.

Najważniejsze informacje:

- dom sprzedawany z pełnym wyposażeniem 
- ogrzewanie podłogowe w całym domu
- instalacja fotowoltaiczna 6 kW
- klimatyzacja kanałowa w salonie i sypialniach
- monitoring, alarm, wideo-domofon
- rolety zewnętrzne, sterowane pilotem
- studnia głębinowa + automatyczne nawodnienie ogrodu
- energooszczędny piec dwufunkcyjny Vaillant
- własna butla gazowa 2700 l
- wolnostojący garaż ok. 40 m²


Borów to spokojna, dobrze rozwinięta miejscowość, oferująca pełną infrastrukturę oraz tereny spacerowe. W odległości 3 km znajduje się stacja kolejowa, z której dojazd do Wrocławia Głównego zajmuje około 19 minut.
Dom został perfekcyjnie wykończony – zarówno wewnątrz, jak i na zewnątrz. Każdy metr przestrzeni został zaprojektowany z dbałością o detale, tworząc spójną, nowoczesną i gotową do zamieszkania całość.
Jeśli szukasz domu łączącego wysoki standard, prywatność i bliskość miasta – zapraszam do kontaktu.

Więcej ciekawych ofert znajdziecie Państwo na naszej stronie internetowej.

Treść niniejszego ogłoszenia nie stanowi oferty handlowej w rozumieniu Kodeksu Cywilnego.

JEZIERSCY

Materiał wideo

Lokalizacja nieruchomości

Kalkulatory

Kalkulator kosztów

Podatek od czynności cywilno-prawnych

Taksa notarialna
(opłata notarialna)

Wniosek o wpis do KW

VAT od taksy notarialnej
(opłaty notarialnej)

Prowizja agencji nieruchomości

Wypisy aktu notarialnego

Razem

Uwaga: mogą wystąpić dodatkowe opłaty za założenie księgi wieczystej oraz ustanowienie hipoteki.

PLN
PLN
PLN
PLN
PLN
PLN
%
PLN

Proszę wprowadzić poprawne imię i nazwisko
Proszę wprowadzić poprawny numer telefonu
Proszę wprowadzić poprawny adres e-mail
Proszę zaznaczyć wymagane zgody
Rozwiąż równanie:
30 5
Niepoprawny wynik